劇場図面・リスト

音響・照明機材リスト

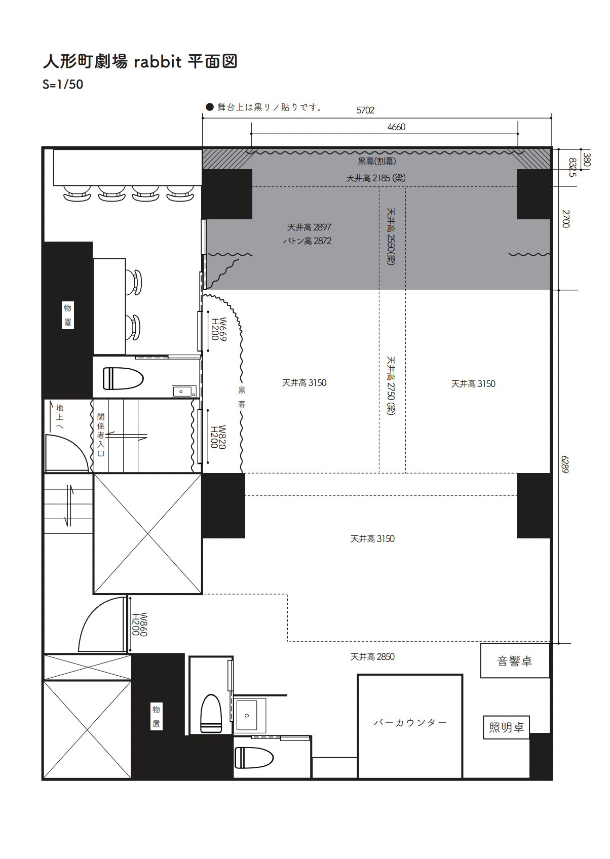
劇場平面図

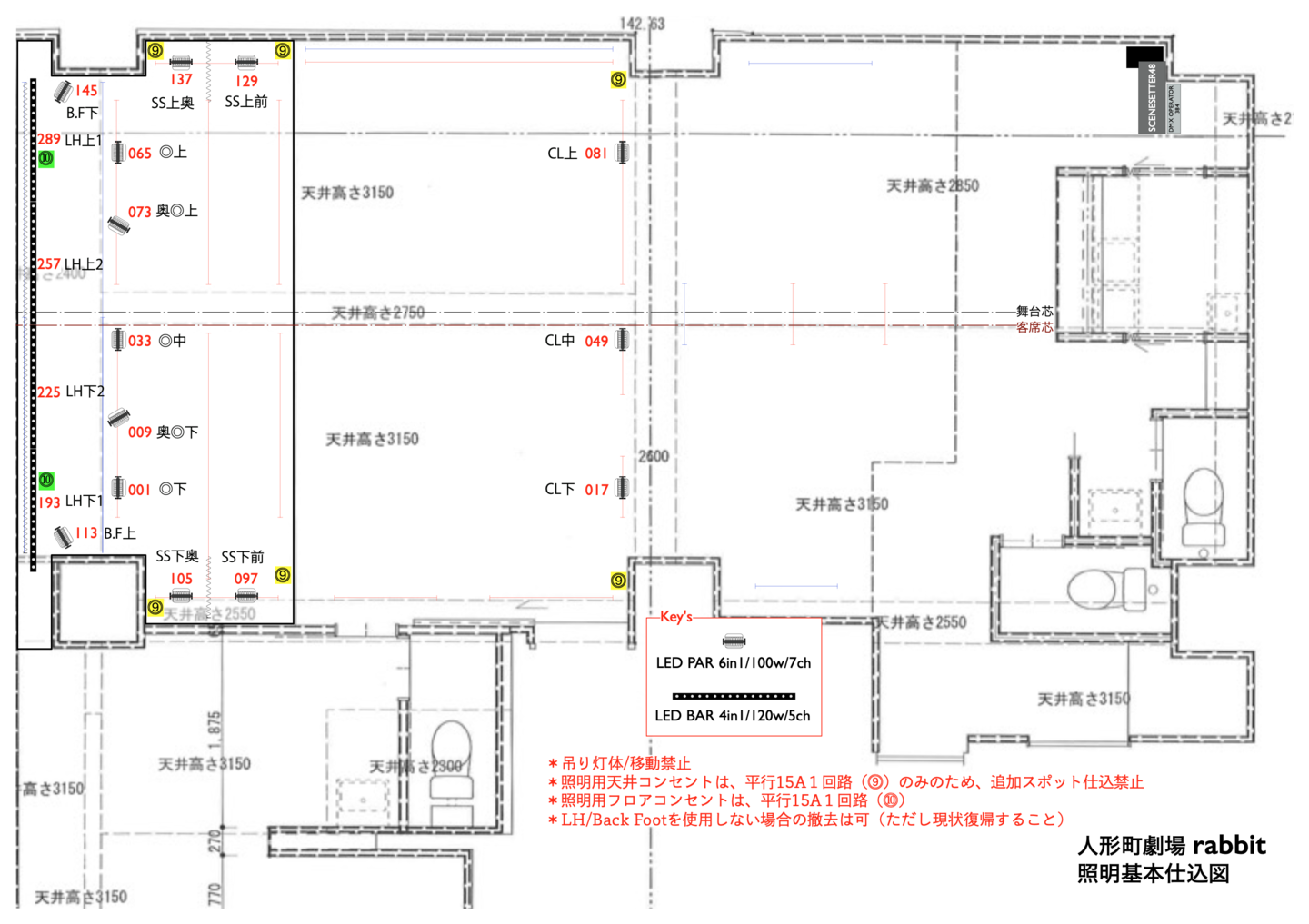
基本照明仕込図

コンセント配置図

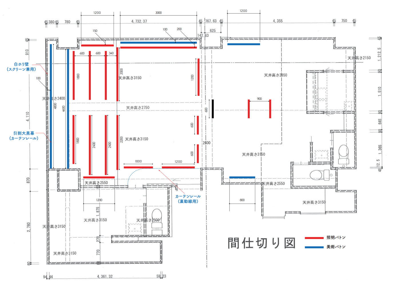
バトン図

 

備品イメージ


客席用テーブル
L80cm×W80cm×H74cm
在庫:13

その他用途テーブル(受付・物販等に)
L35cm×W57cm×H66cm
在庫:黒1 白2

その他用途テーブル(受付・物販等に)
L60cm×W55cm×H70.5cm
在庫:2

客席用椅子
L34cm×W42cm×H45cm(座面まで)
在庫:74 (+控室6)


楽屋用補助椅子
直径30cm×H45cm(座面まで)
在庫:5

 


ステージ用ハイチェア
座面 直径30cm
高さ60cm(座面まで)
在庫:5


プロジェクター
Nebula Mars 3 Air (Google TV搭載)
● 接続方法:HDMIケーブル / 無線接続(Mac・iPhone・Win・Android可)
● 投影場所:
・ステージ奥壁 (黒幕を開けると白壁のスクリーンになります)
・かみて側壁 (壁が白くないのではっきりとは映りづらいですが、美術バトンにスクリーン代わりの物を吊り下げて利用することも可能です)


脚立(大)
設置寸法 幅:46cm / 奥行61cm / 高さ(天板まで)170cm
在庫:1


脚立(中)
幅:38cm / 奥行80cm / 高さ(天板まで)103cm / 段間 21cm / 展開時の高さ140cm / 折りたたみ時の高さ 150cm
在庫:1


入口掲示用 立て看板
高さ 115cm〜147cm
掲示物サイズ:A3
在庫:1